Къща A-102 — Главна фасада
Къща A-102 — Главна фасада
Къща A-102 — Задна фасада
Къща A-102 — Страничен изглед
Нов проект

Готов проект за къща Къща A-102

Средиземноморски дух на три нива — камък, топла мазилка и дом, който прегръща хълма

236 m²

РЗП

3

Спални

3

Етажа

-15%

Цена на проекта

5.112

6.014 €
Спестявате 902 €

Крайна цена • ДДС не се начислява • 3 екземпляра

Изпратете запитване

КАБ & КИИП

Лицензирани

Готов за РС

Разрешително за строеж

Адаптация

По желание

За проекта

Когато теренът не е идеален, архитектурата става изкуство

Не всеки парцел ни посреща с равнинна повърхност и лесно планиране. Понякога земята се издига, спуска се, предизвиква ни. Точно за такива терени създадохме този проект — дом, който не се бори с хълма, а го прегръща, превръщайки особеностите на релефа в свое предимство.

Още с първия поглед усещате духа на Средиземноморието. Каменните акценти по фасадата, топлият тон на мазилката и декоративните жалузи на прозорците разказват история за слънчеви следобеди и спокойни вечери. Всеки детайл тук е обмислен така, че комфортът да не бъде обещание, а ежедневие.

Това не е просто къща. Това е дом, проектиран да се впише в живота ви — и в терена, който сте избрали да наречете свой.

Средиземноморски дух

Камък, топла мазилка, жалузи

Три нива

Полуподземен етаж с гараж

За наклонен терен

Прегръща хълма

Отворен план

Кухня, трапезария, дневна

Разпределение

Анатомия на дома

Без излишни пространства, но и без компромиси

Полуподземен етаж
Кликнете за увеличение
1

Полуподземен етаж

Едно ниво по-надолу полуподземният етаж крие практичната страна на дома — склад, котелно помещение и гараж с топла връзка към сградата.

Топлата връзка означава, че сте на една крачка разстояние между колата и уюта у дома дори и в най-студените дни.

Приземен етаж
Кликнете за увеличение
2

Приземен етаж

Приземният етаж ви посреща с просторно антре, гостна тоалетна и стълба, която деликатно разпределя движението към двете полунива. Тук кухнята, трапезарията и дневната зона се сливат в едно отворено пространство, създадено за живот и споделени моменти.

Оттук стъпвате директно на широка веранда, където приятните моменти могат да продължат.

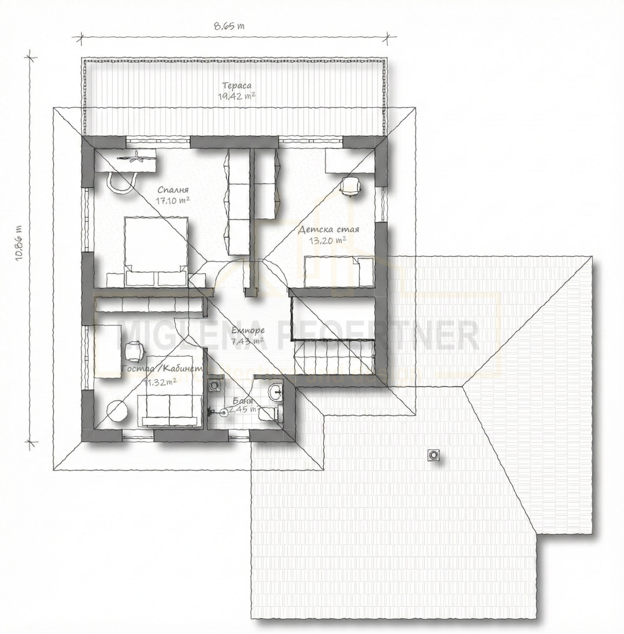
Втори етаж
Кликнете за увеличение
3

Втори етаж

На втория етаж ни посреща емпоре, практична гостна стая или кабинет за тиха работа, спалня, детска стая и щедра тераса, обединяваща спалните помещения.

Ясното разделение между дневна и нощна зона гарантира спокойствие и уединение за всички обитатели.

Спецификации

Технически параметри

Площи

  • ОРЗП* 236,49 м²
  • РЗП по ЗУТ 236,49 м²
  • ЗП (I ет.) 146,55 м²
  • ЗП (II ет.) 89,94 м²
  • ЗП (сут.) 87,75 м²

Помещения

  • Спални 3 бр.
  • Бани / WC 2 бр.
  • Балкони / Тераси 1 бр.
  • Веранда (ниво терен) Да
  • Надземни етажи 2

Сграда

  • Габарити 13,65 × 15,06 м
  • Конструкция Монолитна ст.б.
  • Терен Предимно наклон
  • Отопление Локално парно
  • Топлоизолация EPS 10 см

Покрив и стени

Вид на покрива

Скатен

Наклон на покрива

18°

Материал на покрива

Керамични керемиди

Ограждащи стени

Зидария

* ОРЗП = Обща разгъната застроена площ (включва всички нива)

Ситуация

Варианти за терен

Ситуация — Вариант А

Вариант А

Разположение в Зона Жм. (за жилищно строителство)

Ситуация — Вариант Б

Вариант Б

Разположение в Зона Ов. (за вилно строителство)

Информация

Въпроси и отговори

Всичко, което трябва да знаете, преди да поръчате готов проект.

Имате друг въпрос?
Архитект Миглена Пфьортнър
Философия

Красивата архитектура не трябва да струва цяло състояние

Вярваме, че всеки заслужава достъп до качествени архитектурни проекти на достъпна цена. Твърде дълго готовите проекти бяха или скъпи, или компромисни в качеството.

С тази колекция от готови проекти предлагаме професионално изработени планове на цени значително по-ниски от типичните за индустрията. Всеки проект е разработен със същото внимание към детайла и качество, което влагаме в индивидуалните си поръчки.

M. Pfoertner

Арх. Миглена Пфьортнър · Архитект с ППП в КАБ

Харесва ли ви този проект?

Свържете се с нас за повече информация или за да направите поръчка

Правна бележка: Всички права върху проектите, публикувани на този уебсайт, са запазени. Възпроизвеждането, копирането, разпространението или използването на проектната документация, визуализации, чертежи и друго съдържание без изричното писмено съгласие на автора е строго забранено и подлежи на съдебно преследване съгласно Закона за авторското право и сродните му права.

Architect

Arch. Pfoertner

Online